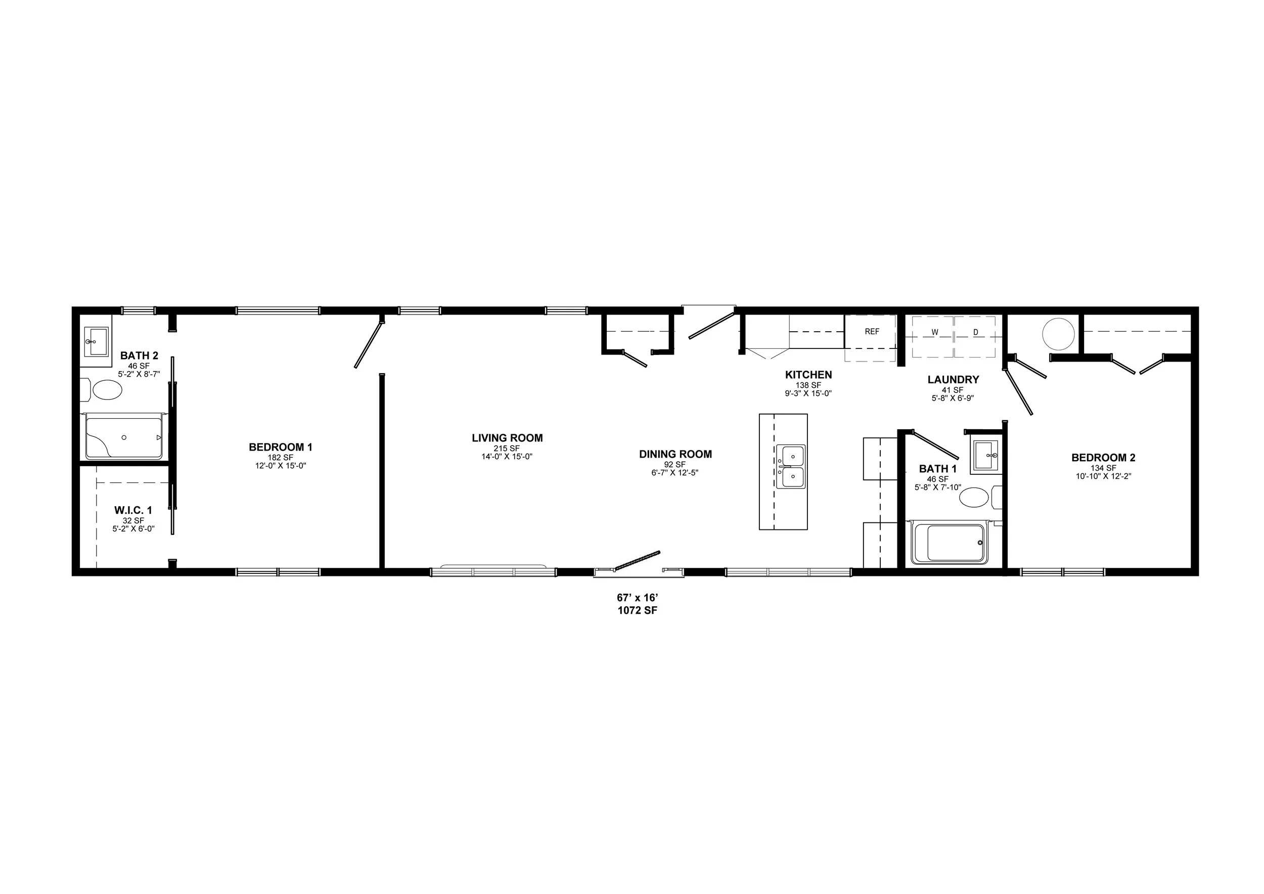
The Uniacke (58244)
ON OUR LOT- READY FOR DELIVERY
Can be placed on one of our lots - or delivered to your own lot!
FEATURES:
1,072 sq ft - 67’ x 16’
2 Bedrooms, 2 Bathrooms
Modern exterior
Atrium roofline with transoms
Large windows and light flooded interior
Open concept living space
Primary at the other end of the home than spare bedroom
Modern spacious kitchen with large island
Cathedral ceiling through main living area
Upgrades: level 2 siding (Gunmetal Grey), birch cabinets with crown moulding in the kitchen, pots and pan drawers, microwave-range hood combo cabinet, range hood vented outside, double garbage bin built in kitchen island, bartop for kitchen island, glass shower doors, granite kitchen sink.

